切田AP右 黒瀬町切田131-3(3DK)
| 家賃 | 5.5万円 | |
| 共益費 | 込み | |
| 駐車場 | 2台分込み | |
| 敷金 | 1ヶ月 | |
| 礼金 | 1ヶ月 | |
| 仲介 手数料 |
家賃1ヶ月+消費税 と駐車場1ヵ月 |
|
| その他 | 自治会費要 | |
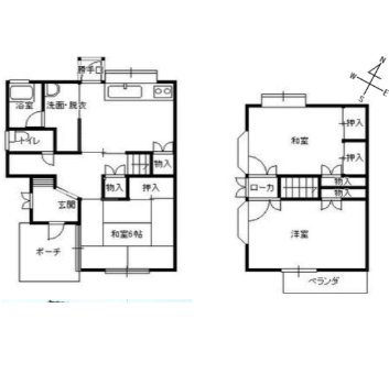
| 間取内訳 | 1F・6DK・6和室:2F・7.5洋・6和室 | 構 造 | 木造 地上2階建 | ||
| 面 積 | 56.29㎡ | 築 年 月 | 平成3年11月 | ||
| 交 通 | 切田バス停より徒歩3分 | 現 況 | 空室 | ||
| インターネット | 個別回線 | 引 渡 | 相談 | ||
| 保証協会 | 加入要(いえらぶパートナーズ) | ||||
| 火災保険 | 保険加入義務有: | ||||
| 設 備 | 電気、上水道、浄化槽、プロパンガス、ガス給湯、シャンプードレッサー、ウォシュレット、室内洗濯置場、 下駄箱、ガスコンロ、物置、カーポト付 |
||||
| 備 考 | 仲介手数料有 ・ 自治会加入要(会費有・掃除出不足金有) | ||||
おすすめ情報